HOUSE DESIGN WITH AN ATTIC DOMIDEA 2 N, PDJ-9517
DESCRIPTION
It is a spacious one-story, very comfortable house with not very large area.
A spacious lit vestibule with a spacious wardrobe leads to the house.
Very thoughtful layout of the rooms provides flexibility in adapting them to your needs. A clear separation of the functional zones of the house allows for comfortable and independent use of them, and also provides the possibility of closing the door of the private part. Also the living room and kitchen can be separated by walls with separate entrances to both rooms.
Shapely 30-meter adjustable living room with a large TV wall provides easy and functional furniture. A large dining room, which can easily fit a table for 12 people for special occasions.
A high living room with beautiful large glazing for the garden is an undoubted attraction of this house.
The large kitchen with a spacious pantry is open to the covered terrace, also accessible from the living room. This is a very attractive solution that allows you to conveniently use the terrace as a summer dining room. The large roof has been thought out so that it does not obscure the living room.
In the private part there are 3 large, shapely bedrooms, including one with wardrobe and own bathroom, as well as a shared bathroom as well as space for a spacious wardrobe in the hall.
The large boiler room allows the use of any fuel method.
Elegant, sophisticated, with well-chosen proportions of solid and balanced detail. Interesting modern facades provide an attractive appearance.
TECHNICAL DATA
HOUSE DESIGN WITH AN ATTIC DOMIDEA 2 N, PDJ-9517
Usable area: 121.28 m²
The building area is 192.31 m²
Cubature 386.57 m³
A depression angle of a roof 2.00 °
Roof area: 185.78 m²
Building height 5.05 m
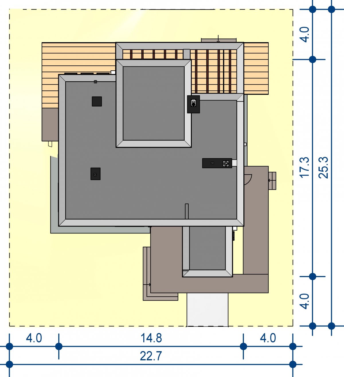
Min. Plot dimensions 22.70×25.30 m
20.26 m² garage
Author Domidea















