HOUSE DESIGN WITH AN ATTIC HOUSE X_07, PDJ -9296
DESCRIPTION
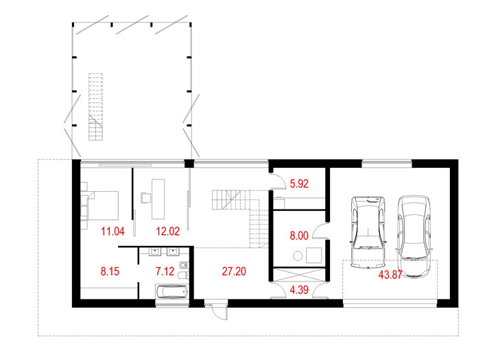
House X_07 is a design of a modern house with a flat roof. Uncompromising and elegant, perfect for people who value original solutions. The advantage of the house is the transfer of almost all functions to the first floor of the building, and the creation of an office part on the ground floor.
TECHNICAL DATA
HOUSE DESIGN WITH AN ATTIC HOUSE X_07, PDJ -9296
Usable floor area 261.91 m²
The built-up area is 253.54 m²
A depression angle of a roof 8.00 °
Min.plot dimensions 26.90×24.60 m
43.87 m² garage
Author arch. Renata Majchrzak












