HOUSE DESIGN WITH AN ATTIC LK & 1104, PDJ-9199

DESCRIPTION

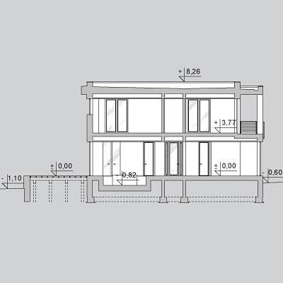
Modern house design with an area of ​​644.05 m². On the ground floor there is, among others, a room for a sauna, two wardrobes or a hygienic and sanitary room. 

TECHNICAL DATA

HOUSE DESIGN WITH AN ATTIC LK & 1104, PDJ-9199

Usable floor area: 644.05 m²

The building area is 730.00 m²

Cubature 2379.00 m³

A depression angle of a roof 2.00 °

Roof area 470.00 m²

Building height 8.71 m

Min. Plot dimensions: 52.00 x 39.50 sq m

Garage 46.15 m²

Author mgr inż. arch. LESZEK KALANDYK

LK & Projekt workshop