HOUSE DESIGN WITH AN ATTIC LK & 899, PDJ-4697
November 5, 20190
DESCRIPTION
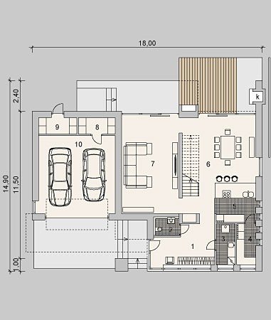
Single-family house, multi-storey, with a double garage.
TECHNICAL DATA
HOUSE DESIGN WITH AN ATTIC LK & 899, PDJ-4697
Usable floor area 187.72 m²
Building area 195.36 m²
Volume 750.00 m³
A depression angle of a roof 2.00 °
Roof area 214.86 m²
Building height 7.65 m
Min. Plot dimensions: 22.20×26.03 m
Garage 36.60 m²
Author mgr inż. arch. LESZEK KALANDYK










