HOUSE DESIGN WITH AN ATTIC LK & 994, PDJ-6728
DESCRIPTION
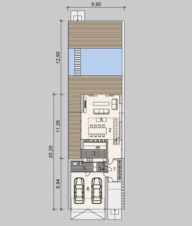
A modern single-family house. It has a garage, boiler room and swimming pool. The main advantage of the house are undoubtedly the large windows that allow for natural lighting of the rooms and create a unique, bold and somewhat industrial kilm of this design.
TECHNICAL DATA
HOUSE DESIGN WITH AN ATTIC LK & 994, PDJ-6728
Usable floor area: 168.36 m²
The built-up area is 208.71 m²
Volume 571.50 m³
A depression angle of a roof 2.00 °
Roof area: 187.12 m²
Building height 7.45 m
Min. Plot dimensions: 40.40×16.90 m
Garage 36.31 m²
Author mgr inż. arch. LESZEK KALANDYK














