BUNGALOW

BUNGALOW

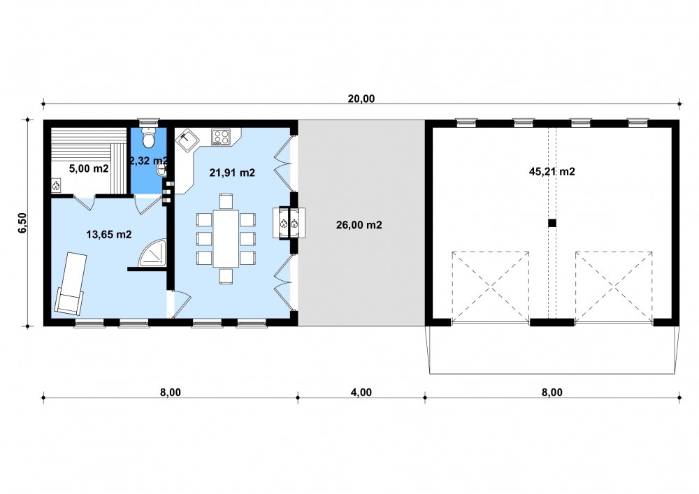
SUMMER HOUSE DESIGN G191 – RECREATIONAL BUILDING WITH SAUNA, PDJ-9632

DESCRIPTION

Design of a recreational building, one-story, without a basement, with a sauna, a recreation room, a kitchenette, a bathroom and a double garage, intended for passenger cars. The design is accompanied by a list of: steel, roof truss and door frames, as well as free consent to make changes.

TECHNICAL DATA

SUMMER HOUSE DESIGN G191 - RECREATIONAL BUILDING WITH SAUNA, PDJ-9632

Usable floor area: 42.16 m²

The building area is 104.00 m²

Cubature 424.00 m³

A depression angle of a roof 3.00 °

Building height 3.35 m

Garage 45.21 m²

Workshop Buy design

BUNGALOW

PROJECT OF TWO-FAMILY HOUSE ZX103 BG, PDJ -8111

DESCRIPTION

Zx103bG is a neat one-story house in a modern style. Compared to the Zx103 variant, it does not have a garage, but thanks to this it gained a well-lit utility room with a terrace. A simple, cubic block with a flat roof and natural elements of the facade finish give it elegance and grace. A comfortable and functional interior has been designed on 148m². The day zone is a spacious, almost 40m² living room connected with a partially open kitchen and exit to the covered terrace. A big advantage of the design is the simple design and numerous partition walls, which allows you to almost freely adjust the surfaces of the rooms. In the entrance area there is space for a large wardrobe, a small bathroom and a room that can act as a guest bedroom or study. A laundry room with a window is also available from the hall. Next, there was a night part with three bedrooms and a shared bathroom. One of the rooms has its own large wardrobe. Zx103bG is an interesting proposition for supporters of modern style. The combination of light plaster and wood and simple terrace roofing forms a coherent whole with high aesthetics. 

TECHNICAL DATA

PROJECT OF TWO-FAMILY HOUSE ZX103 BG, PDJ -8111

Usable floor area: 148.09 m²

The built-up area is 181.12 m²

Cubature 392.50 m³

A depression angle of a roof 3.00 °

Roof area: 186.00 m²

Building height 4.10 m

Min. Plot dimensions: 22.24×22.44 m

Author Piotr Zwierzyński

Workshop Studio Z500

BUNGALOW

PROJECT OF TWO-FAMILY HOUSE ZX49 -, PDJ -8118

DESCRIPTION

Zx49- is a one – story single -family house with a garage of an elegant, modernist character. The simple, cubic form has been enriched with facings made of natural materials on the facades. Zx49- designed as an energy-saving house harmonized with the surroundings. The covered terrace increases the space by an additional place of rest.

The geometric shape of the house hides a comfortable and functional interior.  The hall leads to the day zone – a spacious living room with an open kitchen. There is also a handy pantry, a place for wardrobes and a comfortable bathroom with a shower. An additional advantage of the design is the garage accessible directly from the hall.

The night zone was clearly separated in the rest of the house. There are 3 spacious bedrooms, each with space for capacious wardrobes, a large public bathroom with a window and a wardrobe.

TECHNICAL DATA

PROJECT OF TWO-FAMILY HOUSE ZX49 -, PDJ -8118

Usable floor area 120.42 m²

The built-up area is 181.92 m²

Cubature 394.87 m³

A depression angle of a roof 2.00 °

Roof area: 186.42 m²

Building height 4.20 m

Min. Plot dimensions: 24.46×20.84 m

Garage 28.69 m²

Author Piotr Zwierzyński

Workshop Studio Z500

BUNGALOW

FRAME HOUSE DESIGN ZX46 GL2, PDJ -8119

DESCRIPTION

The design of a modern house Zx46 GL2 is distinguished by a modern, cubic block and details made of light stone.

The interior of the building conceals a comfortable and spacious house. The house’s ground floor has a simple layout with a clear day zone containing a living room with fireplace , dining room and functional kitchen. This part of the house opens onto the garden through the patio door. The added value of the house is a private exit to the garden from a comfortable bedroom for a couple with their own wardrobe and bath room. The lobby connects all utility rooms and rooms. On the first floor there are three large bedrooms , a hall, a shared wardrobe and a bath room . An additional attribute is the exit to a spacious terrace, making the attic unique and original.

Although it looks extravagant and modernist, it is a simple project. Perfectly suited to the tastes of people looking for an original and unique home that can accommodate a fairly large family

TECHNICAL DATA

FRAME HOUSE DESIGN ZX46 GL2, PDJ -8119

Usable floor area: 204.26 m²

The built-up area is 184.56 m²

Cubature 707.28 m³

A depression angle of a roof 2.00 °

Roof area: 125.87 m²

Building height 7.10 m

Min. Plot dimensions: 23.24×24.64 m

Garage 46.08 m²

Author Piotr Zwierzyński

Workshop Studio Z500

BUNGALOW

FRAME HOUSE DESIGN ZX41 V1, PDJ -8120

DESCRIPTION

Zx41v1  is a two-story house with a flat roof with a garage in a block. The elegant, modernist block in the interior has clearly been divided into day and night zones.

The living room combined with the dining room and kitchen  create a single space interior. The functional pantry increases the comfort of use. The project provides for a large utility room, bathroom and space for capacious wardrobes. A huge advantage is the  garage  with a direct passage to the hall. Above it is a  huge terrace  accessible from the lobby upstairs. The night zone has three bedrooms and a shared bathroom. The lobby is lit by large balcony windows. The master bedroom is additionally equipped with a wardrobe.

Zx41 is a proposal of a compact home  for supporters of modern style. The combination of white and wood create a coherent whole with high aesthetics.

TECHNICAL DATA

FRAME HOUSE DESIGN ZX41 V1, PDJ -8120

Usable floor area: 113.31 m²

Building area: 117.98 m²

Cubature 351.20 m³

A depression angle of a roof 3.00 °

Roof area 59.83 m²

Building height 7.00 m

Min. Plot dimensions 17.64×20.74 m

19.36 m² garage

Author Piotr Zwierzyński

Workshop Studio Z500

BUNGALOW

PROJECT OF TWO-FAMILY HOUSE ZX35 GL, PDJ -8123

DESCRIPTION

Variant with a 1-car garage and leveled attic

TECHNICAL DATA

PROJECT OF TWO-FAMILY HOUSE ZX35 GL, PDJ -8123

Usable floor area: 112.93 m²

The built-up area is 172.79 m²

Cubature 374.30 m³

A depression angle of a roof 2.00 °

Roof area: 168.98 m²

Building height 4.15 m

Min.plot dimensions 18.74×25.24 m

27.01 m² garage

Author Piotr Zwierzyński

Workshop Studio Z500

BUNGALOW

HOUSE DESIGN WITH AN ATTIC ZX53, PDJ -5041

DESCRIPTION

Zx53 is a one-story house with a shapely, modern shape. On a small area of ​​just 100m2 offers a rich utility program with three bedrooms. Carefully selected elements of the facade finish and arcades with pergolas emphasize its innovative character.

The simple design allows almost any interior arrangement. Partition walls can be moved and removed freely. The leisure zone is a spacious living room connected to an open kitchen. The kitchen includes a handy pantry, next to it is an additional toilet with a window. In the night part there are 3 comfortable bedrooms, each with a large balcony window and a comfortable bathroom. There is a direct exit to the covered terrace from the living room and the host’s bedroom.

Zx53 is an offer for people who value simple, sophisticated minimalism and functionality. The project shows that a modern house does not necessarily mean a large and expensive investment.

TECHNICAL DATA

HOUSE DESIGN WITH AN ATTIC ZX53, PDJ -5041

The area is 99.22 m²

The building area is 124.84 m²

Cubature 262.90 m³

A depression angle of a roof 3.00 °

Roof area: 94.76 m²

Building height 4.00 m

Min. Plot dimensions: 18.29×21.79 m

Author Piotr Zwierzyński

Workshop Studio Z500

BUNGALOW

HOUSE DESIGN WITH AN ATTIC ZX104, PDJ -7165

DESCRIPTION

Zx104 is a design of a modern one-story house , with 3 comfortable rooms, a garage for two cars and a kitchen from the garden side.

The minimalist architecture is distinguished by its original design, with motifs of regular divisions and subdued plaster with a dominant color. From the living room, the exit to the covered terrace is a simple form in the form of a frame, as is the entrance arcade to the house. The pool is an additional element extending the terrace and providing relaxation on hot days, but it is not mandatory.

In this house there are only large glazing , to the ground, allowing a lot of daylight into the interior, as well as in the living room and in the rooms and bathroom. Each room has a lot of space for long and roomy wardrobes. Due to the optimization of the area in order to reduce construction costs, one shared bathroom for 3 bedrooms was designed, while an additional toilet is located near the hallway and living room.

The kitchen with a long worktop has access to a separate pantry, which is also connected to the utility room and garage, which makes it easier to carry and store purchases. The window has been designed to illuminate the kitchen counter as much as possible, leaving the possibility of hanging cabinets at a convenient height.

In the large utility room , at the back of the garage, you can also place the garden door instead of the window.

TECHNICAL DATA

HOUSE DESIGN WITH AN ATTIC ZX104, PDJ -7165

Usable floor area 119.76 m²

The built-up area is 197.66 m²

Cubature 433.60 m³

A depression angle of a roof 2.00 °

Roof area: 165.80 m²

Building height 4.55 m

Min. Plot dimensions 21.44×23.74 m

Garage 34.91 m²

Author Piotr Zwierzyński

Workshop Studio Z500